De ruwbouw is voltooid (gestart in 2023), ideaal gelegen in Bonnerue, vlakbij de hoofdwegen naar Bastogne. De woning is reeds voorzien van plafonds en beschikt over elektriciteits- en wateraansluitingen (tijdelijke meter), een geplande vloerverwarming, een regenwatertank en een micro-afvalwaterzuiveringsinstallatie, beide reeds geïnstalleerd. Deze woning dient nog te worden afgewerkt naar uw smaak en behoeften. Wordt verkocht onder het 21% btw-tarief (wordt bij de verkoopprijs opgeteld). Eerste bezichtigingen op 22 september.
Virtuele rondleiding
Gesloten ruwbouw in Bonnerue (Houffalize). Verkocht onder het btw-regime van 21%.
€ 235.000
Nieuw
3
2
150 m²
1057 m²
2
Documenten
Algemene informatie
AdresBonnerue 3C, 6660 Houffalize
OmgevingLandelijk
Aantal verdiepingen1
Aantal slaapkamers3
Aantal badkamers2
Aantal toiletten2
Aantal parkeerplaatsen2
Bewoonbare oppervlakte150 m²
Oppervlakte living42 m²
Grondoppervlakte1057 m²
Breedte plot49 m
BeschikbaarheidBij akte
Orientatie achterkantOost
Energieprestatie
EPC label
Certificaat elektriciteitNee
Financieel
Prijs€ 235.000
BTW€ 39.900
Registratierechten (12.5%)€ 5.625
Registratierechten (3%)€ 1.350
Constructie kosten€ 190.000
Totale kosten€ 48.384,42
Totaal€ 283.384,42
Comfort
KeukenGeen
BeglazingDubbel glas
RaamkozijnenAluminium
Exterieurmicro station dépuration
Bebouwing
BebouwingOpen
Bouwjaar2023
StaatRuwbouw Winddicht
DakSchuin dak
DakmateriaalKunstleien
DakstaatEn parfait état
Bodemattest-
Stedenbouwkundige informatie
VoorkooprechtNiet van toepassing
VergunningJa
DagvaardingNiet van toepassing
VerkavelingvergunningJa
BestemmingWoongebied
Risicozone voor overstromingenNee
Afgebakend overstromingsgebiedNee
Afgebakende oeverzoneNee
Indeling
Gelijkvloers
Hall10.0 m²
Séjour42.0 m²
Berging6.0 m²
Bureau8.0 m²
Toilet 12.0 m²
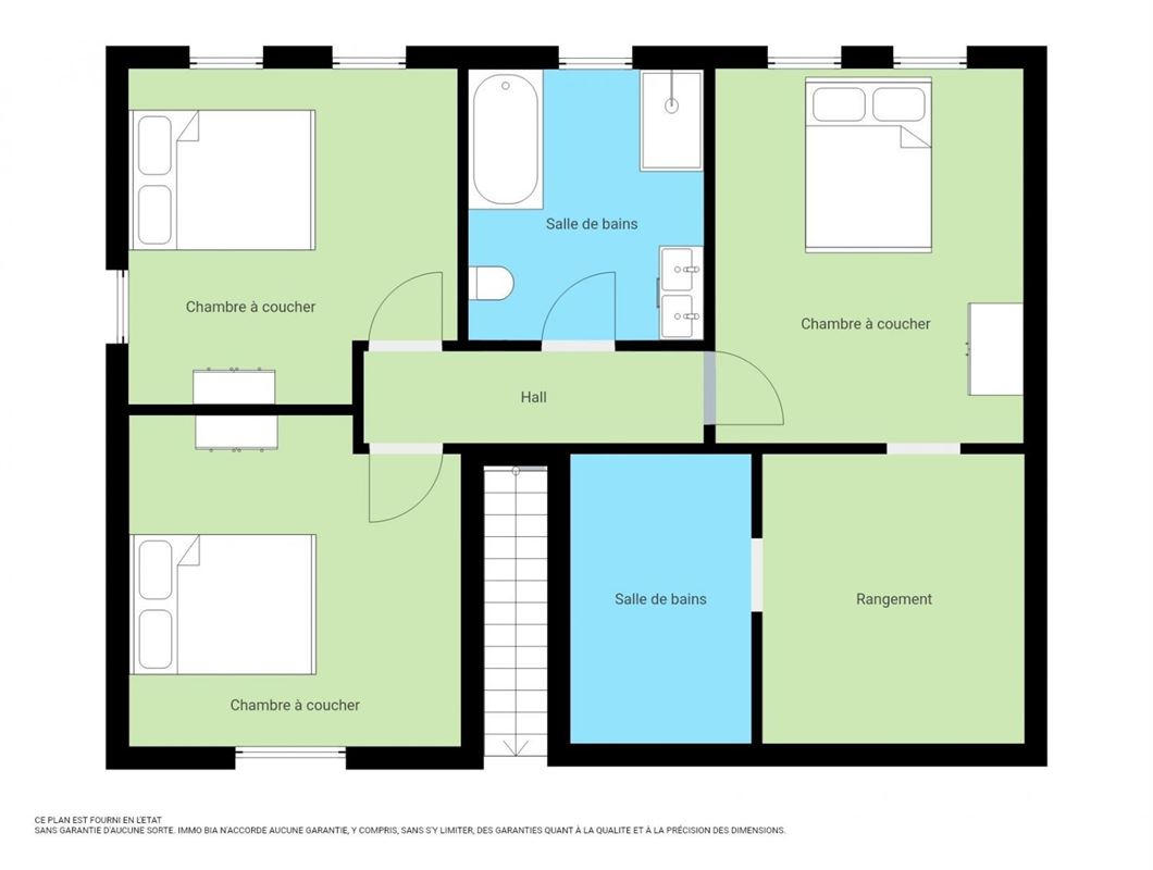
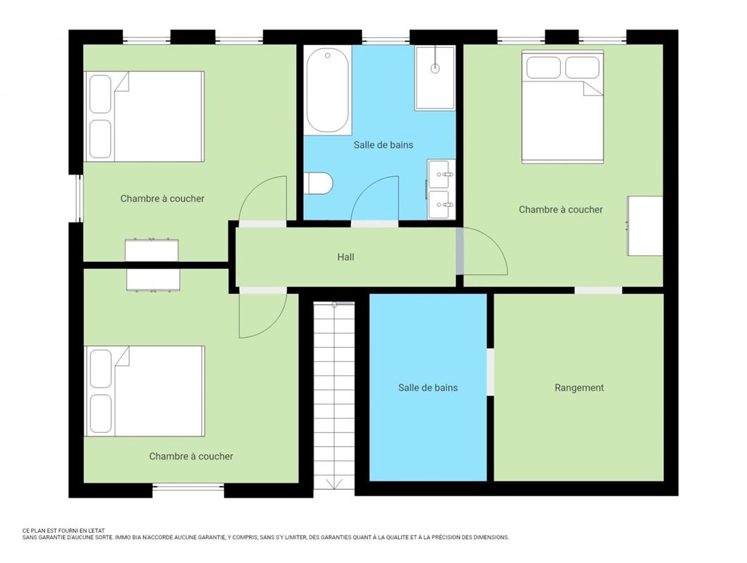
Eerste verdieping
Hall4.0 m²
Slaapkamer 112.0 m²
Slaapkamer 112.0 m²
Badkamer 18.0 m²
Slaapkamer 114.0 m²
Dressing9.0 m²
Badkamer 19.0 m²
Tweede verdieping
60.0 m²
.png?format=webp&width=1920&height=auto)






























