Située dans le charmant village de Gênes, sur la commune de Rendeux, cette maison de caractère des années 1800 a été rafraîchie en 2020 tout en conservant son authenticité. Nichée au cœur de la campagne, elle offre un cadre de vie paisible, verdoyant et idéal pour les amoureux de la nature et de la tranquillité.
Dune surface habitable d'environ 220 m², cette propriété se compose d'un rez-de-chaussée spacieux, d'un étage lumineux et d'un petit grenier aménagé.
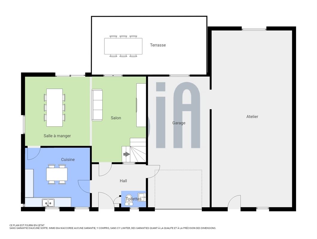
Elle comprend 5 chambres confortables, une terrasse bien orientée, un grand garage, ainsi qu'un atelier attenant offrant de nombreuses possibilités (espace de travail, rangement, projet d'aménagement).
À l'extérieur, vous profiterez d'un beau terrain de 25 ares, parfaitement entretenu, avec vue dégagée sur la campagne.
Une partie ancienne de la maison reste à rénover, permettant d'adapter le bien à vos besoins et vos envies.
Atouts principaux :
- Maison de caractère du XIXe siècle, rénovée avec goût
- Environnement calme et verdoyant
- 5 chambres spacieuses
- Grand garage et atelier
- Terrain de 25 ares avec superbe vue
- Terrasse ensoleillée
- Fort potentiel d'aménagement
Une opportunité rare pour les amateurs d'authenticité, d'espace et de nature.
Premières visites le 17 novembre.
.png?format=webp&width=1920&height=auto)
































